This 2-car garage home includes dedicated RV parking with a concrete ribbon approach, RV gate, and compacted road mix behind the gate. Inside is a stunning kitchen featuring quartz countertops, a full tile backsplash, and knotty alder cabinets and open-concept great room. Luxury vinyl plank flooring adds modern style and durability throughout. Enjoy outdoor living with a covered front porch and covered back patio with a south facing back yard. This new home delivers exceptional comfort and style.The sales price does not include the buyer's agent compensation. We are happy to add buyer's agent compensation to the sales price. Photos are similar
Home Info
- Address 1661 Haystack Rd Emmett ID
- Move In March 2026
- Status Active
- Lot DF021004
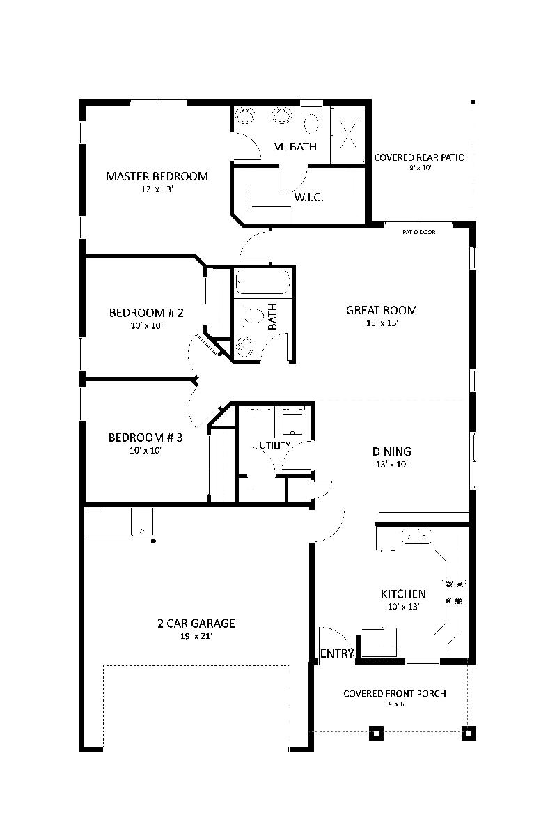
Floorplan
Standard Features
- Tankless water heater
- High-efficiency furnace
- Central air conditioner
- Energy Smart Certified
- 3cm granite slab kitchen countertops
- Stainless steel microwave, dishwasher, and oven
 
 
 
 
 
 
 
 
 
 
 
 
 
 
 
 
 
 
 
 
 
 
 
 
 
 
 
 
 
 
